עברו מהמרכז לצפון הארץ לבית מטריף על גבעה
בני הזוג רכשו מגרש בצורת טרפז לא שגרתי וביקשו לתכנן בית משפחתי שמחובר לנוף. התוצאה מבנה המורכב משני מלבנים בצורת האות V, עם בריכת שחייה, מטבח חוץ מאובזר, חללים ציבוריים פתוחים לחוץ ועיצוב שמאזן בין עבודה מהבית, אירוח מפנק ויום-יום משפחתי. ועוד לא אמרנו מילה על המטבח, תראו לבד





יניב ואושרת, הורים לארבעה ילדים, פנו אל סטודיו רון שינקין לאחר שרכשו מגרש של 500 מ"ר ביישוב לבון, אזור הררי בצפון הארץ, כחלק מהחלטה לעבור מהמרכז לצפון בלי לוותר על שגרת החיים שלהם. שניהם עובדים יומיים בשבוע מהבית, וחיפשו מקום שיאפשר חיים משפחתיים פעילים. ברשימת החלומות: בריכת שחייה ומטבח חוץ מאובזר, מתוך אהבה גדולה לבישול ואירוח בחוץ, ועם דגש על נוחות ושימושיות.
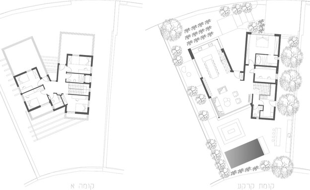
המגרש שעליו נבנה הבית מאתגר במיוחד, בצורת טרפז. בני הזוג היו מודעים למורכבות הזו כבר בשלב הרכישה, וכבר בפגישת התכנון הראשונה הוחלט כי הפתרון האדריכלי יהיה בית בצורת האות V באנגלית, מבנה המאורגן סביב חללים ציבוריים פתוחים, חצר ובריכת שחייה, ומייצר הפרדה ברורה בין אזורי המגורים, העבודה והאירוח.
הבית, המתפרש על פני 230 מ"ר ונבנה במשך שנה ושלושה חודשים, מורכב משני מלבנים הנושקים זה לזה, ומחולק לכמה אזורים ברורים. הכניסה למגרש מתבצעת מרחוב משופע, ושביל המלווה במדרגות בטון מוביל אל המפתח שבין שני המלבנים. בקצה השביל נמצאת דלת הכניסה לבית, שמעליה פרגולת עץ.



סלון במלבן, מטבח בצורת ר'
עם הכניסה לבית מגיעים לחלל מבואה. משמאל הוצב ארון לנעליים ולתיקים בעל שלוש דלתות עץ בגימור צבע בתנור. מול דלת הכניסה נפתחת ויטרינה גדולה הצופה אל בריכת השחייה. הוויטרינה מתחברת לקיר אבן, ובהמשכו פסנתר קיר. הסלון מוקף ויטרינות מכל עבר, וללא טלוויזיה קבועה, במקום זאת מותקן מקרן היורד מהתקרה, עם מסך נגלל.
במלבן הדרומי ממוקמים הסלון, פינת האוכל והמטבח. בין פינת האוכל לסלון ניצב ארון גדול המשמש גם כיחידת טלוויזיה, ארון עץ בעל פסים דומיננטיים, צבוע בתנור ומשולב בגמר חלקי של פורניר עץ. במרכז החלל ניצב שולחן אוכל גדול מעץ, שעוצב על ידי המשרד ובוצע על ידי נגר. בקצה השולחן משולב אי קטן הנושק אליו, הנועד לשמש כאי הגשה ובופה בעת אירוח.




המטבח תוכנן בצורת האות ר', עם חלון ארוך באותה צורה, המקביל למשטח העבודה ומכניס את השמיים והנוף פנימה. החלון פונה מערבה ומאפשר למשבי רוח לחדור אל החלל ולעבור לאורכו. לצורך הצללה בשעות השקיעה הותקנו צלונים. המטבח עוצב בחלוקה סימטרית של ארונות ומגירות, עם דגש על ידיות עץ בולטות – כ-2 ס"מ של עץ מלא בדופן הדלתות והמגירות – היוצרות חלוקה מדורגת ומקצב של פסים, המשמשים גם לפתיחה וגם כחוצצים בין יחידות המגירות.
תקרת החלל הציבורי חופתה בעץ אורן צבוע בגימור חצי אטום, ובתוכה שולבו גופי תאורה שקועים, רמקולים מפוזרים בהתאם לדרישת בעלי הבית, וכן המקרן והמסך. כיוון פסי העץ מקביל לצורת המלבן ומכסה את כל החלל הציבורי. גוון הצבע שנבחר רגוע ותואם את שאר צבעי הבית.
במלבן הצפוני, במרכזו, ממוקמות המדרגות. החלק התחתון שלהן אטום, ומתחתיו תוכנן שטח אחסון עם גישה מהחדר הסמוך. המדרגות משלבות עץ ורצפת מיקרוטופינג, מחולקות לשני גרמים, וגרם המדרגות העליון מחובר לקיר ויוצר תחושת ריחוף. מעקה הברזל מחובר ישירות למדרגות, וחלון אנכי גבוה עולה עד לקומה א', ומכניס אור טבעי מכיוון צפון.



ממזרח למדרגות ממוקמים שירותי האורחים, הכוללים גם מקלחת, וכן חדר כביסה ואחסון עם יציאה ישירה לכיוון מטבח החוץ. בחלל זה הוצב מקרר גדול המשמש את מטבח החוץ. בהמשך המלבן, ממערב למדרגות, נמצא הממ"ד, שלפניו מסדרון. הממ"ד משמש כמשרד ביתי מאובזר. לאורך אחד הקירות ניצב שולחן עץ ארוך עם שתי עמדות מחשב, ומולו ארון אחסון גדול עם נישה מרכזית.
בפינה הצפון-מערבית של המלבן ממוקם חדר השינה של ההורים, הכולל חדר רחצה ושירותים. לחדר חלון גדול הפונה מערבה, ומכניס אליו כמות גדולה של אוויר. בכל אחת מצלעות החדר מוקם ארון קיר גדול עם נישה פתוחה במרכזו – דרישה מרכזית של הלקוחות הייתה שפע של מקומות אחסון. הכניסה לחדר הרחצה מוקמה בחלקו המרוחק של החדר, כדי לשמור על פרטיות. בחדר הרחצה שולבה אמבטיה, ולצידה מקלחון. מול הכניסה תוכננה שידת נגרות עם מראה, והכיור בוצע מקוריאן לפי מידות ייעודיות. גם בחדר השינה וגם בחדר הרחצה הרצפה היא מיקרוטופינג, וכך גם קירות חדר הרחצה. דלת הכניסה לחדר הרחצה היא דלת הזזה, שברוב שעות היום פתוחה חלקית ואינה מפריעה לנתיב ההליכה.



מהסלון יוצאים דרך ויטרינה גדולה של חברת כוכב אלומיניום אל פינת ישיבה שקועה בחוץ. פינה זו משמשת את המשפחה כמעט מדי יום. במרכז הפינה ניצב שולחן שבתוכו תנור אש הפועל על גז (Fire Pit) . בהמשך ממוקמת בריכת השחייה, המחופה גם היא במיקרוטופינג, בדומה לריצוף הבית והחוץ. בצדה הצפוני של הבריכה הותקן ארגז עץ שבתוכו כיסוי הבריכה האוטומטי, הארגז עצמו משמש גם כספסל ישיבה לילדים וכנקודת קפיצה לבריכה. מטבח החוץ ממוקם בחלק הצפון-מזרחי של החצר, בנוי משני פסי עבודה ומחופה בפורצלן.
בקומה א', בקצה גרם המדרגות, נפתח מסדרון בצורת האות V בדומה לקומת הקרקע. גם כאן מתוכננים שני מלבנים היוצרים יחד את הצורה. באגף אחד נמצאים שני חדרי שינה לילדים, עם חדר רחצה משותף ביניהם, ובקצה מרפסת עם פרגולת עץ. באגף השני שני חדרי שינה נוספים, גם הם עם חדר רחצה משותף ומרפסת עם פרגולת עץ. דרישת הלקוחות הייתה שלכל אחד מהחדרים תהיה יציאה למרפסת, והיא תשמש את כולם. המרפסות פונות מערבה ונהנות מאוויר ההרים המגיע מהים.
כל אחד מחדרי השינה תוכנן בצורה מעט שונה: באחד מהם מיטה על במה וארון בקצה החדר, ובאחר מיטה על עמודים עם סולם – ביטוי נוסף לגיוון ולתכנון המותאם לאופי הילדים - שתי בנות ושני בנים, בגילים 7 עד 16.





אדריכלות ועיצוב : סטודיו רון שינקין