mako
פרסומת

דירת הסבתא המוזנחת בת"א עברה מהפך, הגולשים לא האמינו שהיא אמיתית

דירת הסבתא המוזנחת ביד אליהו עברה מהפך כל כך דרמטי, עד שגולשי טיקטוק היו בטוחים שמדובר בפינטרסט, בהדמיה או בבינה מלאכותית. אך מאחורי החלונות המקושתים, הטרצו, הנגרות המותאמת והצבעוניות המדויקת עומדים תהליך שיפוץ ממושך, תכנון חכם והחלטות עיצוביות לא שגרתיות – יחד עם לא מעט כסף ועבודה אמיתית בשטח

פורסם:
דירה בתל אביב תכנון ועיצוב פנים מיכאל ומור וולובץ
צילום: קרין רבנה
הקישור הועתק

"קנינו דירת סבתא מתפרקת והפכנו אותה לפנינה אמיתית", שיתפה טלי דסטה רבנר בחשבון הטיקטוק שלה, ולא תיארה לעצמה את מבול התגובות שפקפקו באמינות התמונות הסופיות. רצפת הטרצו הישנה, מדפי הזכוכית בסלון, ארונות המטבח הצרים והארוכים בלבן ממוסגר בעץ, ואחריהם ויז'ואל חלונות רומנטיים, רצפה חלקה-חלקה, ירוק מכל פינה ודמותה של טלי ליד החלון, כאילו לקוחה מתוך ז'ורנל, הביאה גל של ספקנות: "דיי עם ה-AI", "הדמיה בדקה עבודה? כולנו מתרשמים", "תעדכנו שהיא מצלמת סרטון של הבית כי זה נראה פינטרסט" או "אשכרה רחוב פינטרסט שכונת "ai ו"זה הדמיה חחח לא לחרטט". טלי הופתעה מהשטף אבל לא נבהלה. על השאלה איך זה אמיתי הסבירה "בעזרת לא מעט כסף" ועל כל ה"די" הגיבה ב"די עם הדי".

"לא העליתי הדמיה לרשת. העליתי תמונה אמיתית שצולמה על ידי צלמת מקצועית. לא האמינו כי המהפך היה מרשים מאוד, וגם כי טיקטוק זה טיקטוק, המגיבים חייבים לפני ואחרי של אותה זווית בדיוק, אחרת זה לא אמין בעיניהם", היא מסבירה וצוחקת. את הדירה ביד אליהו רכשה עם בעלה גדעון, אחרי שהתגוררו עם שתי בנותיהם בשכונה סואנת בתל אביב וחיפשו את השקט של השכונה.

דירה בתל אביב תכנון ועיצוב פנים מיכאל ומור וולובץ
צילום: קרין רבנה

דירה בתל אביב תכנון ועיצוב פנים מיכאל ומור וולובץ
צילום: קרין רבנה

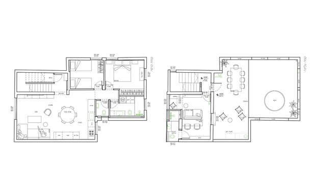
בדירה, שגודלה 140 מ"ר, התגוררה בעבר אישה מבוגרת שהורישה אותה לנכדים, ומאז עמדה ריקה במשך כמה שנים. יש בה קומת גג והיא הייתה במצב מוזנח למדי. טלי ובעלה ביקשו לשפץ את שתי הקומות ולתכנן מחדש את חלוקת החלל כך שתתאים לצרכיהם. היא עברה תהליך שיפוץ מקיף במשך כתשעה חודשים, החל משלבי התכנון והקונספט ועד לאכלוס. "ביקשנו תכנון פרקטי וחכם שממקסם את המרחב, שהוא לא גדול. לא התפשרנו על נוחות לצרכים שלנו כמשפחה", מספרת טלי, הייטקיסטית שעוברת בימים אלה לתחום הטיפול. "כזוג שאוהב אומנות פופ, צבעוניות ואלגנטיות, בחרנו בעיצוב שמשלב בטעם את כל אלו, והמעצבים היו שותפים מלאים לסוגיית העיצוב. ידענו בדיוק מה אנחנו רוצים לכל אורך הדרך וניווטנו את זה בהתאם".

פרסומת
דירה בתל אביב תכנון ועיצוב פנים מיכאל ומור וולובץ
צילום: קרין רבנה

דירה בתל אביב תכנון ועיצוב פנים מיכאל ומור וולובץ
צילום: קרין רבנה

"זהו בניין בן 3 קומות, והשתיים העליונות שייכות למשפחה", מסבירה מעצבת הפנים מור וולובץ מסטודיו VOLOVATZ. "לקומה העליונה הייתה כניסה נפרדת במעלה המדרגות, וכדי לחבר אותה לדירה, 'נבלע' גרם המדרגות כחלק מהדירה, כך שתתקבל פרטיות לשתי הקומות".

כשראו את הדירה בפעם הראשונה, לא יכלו שלא להתפעם מהחלונות המקושתים, שבתוך החושך וההזנחה בהקו מרחוק כמו בכנסיות, לדבריה. "החלטנו לא לגעת בהם מעבר לניקיון, משום שהכניסו אור, שיקפו את המעטפת הירוקה של העצים בחוץ והתאימו לייחודיות של הדירה, למשפחה עם אופי ולסטייל של טלי, שמרשימה מבפנים ומבחוץ", אומרת וולובץ.

פרסומת

בקומת הכניסה מטבח ופינת אוכל, מימין הסלון ומשמאל מסדרון לשני חדרי שינה. בקומה העליונה גג גדול, חדר עבודה ומשחקים וחדר רחצה, שבעתיד ישמשו שניהם לסוויטה להורים עם יציאה לגג. במקור הייתה הדירה עם חלל סלון ומטבח המופרד בקיר נמוך, שני חדרי שינה, חצי חדר, חדר רחצה ושירותי אורחים. הוחלט לתכנן מחדש את החללים, כך שהמטבח והסלון יהיו חלל אחד שלם, ליצור חדר רחצה גדול ומפנק עבור כל בני המשפחה ובה בעת להרחיב את חלל המטבח. "מבחינת סגנון, המטרה שלנו הייתה רק לכוון ולדייק את הסגנון המובהק של המשפחה. היה חשוב להם לעבוד עם צבע, עם פרטי ריהוט וגופי תאורה אקלקטיים ולתת מקום של כבוד לאוסף המיניאטורות והבובות שלהם".

דירה בתל אביב תכנון ועיצוב פנים מיכאל ומור וולובץ
הדמיה: קרין רבנה

דירה בתל אביב תכנון ועיצוב פנים מיכאל ומור וולובץ
צילום: קרין רבנה

לדירה נבחרו צבעי חמרה, בז' ונגיעות של ירוק וזהב. "טלי לקוחה סקרנית ומעורבת מאוד, ששאלה שאלות כדי להבין את התהליך. היה לה חשוב לשלב צבעים והרבה ירוק וגם את החפצים והאוספים שלהם, ולכן עשינו 'כוונון' נכון כדי לקבל את התוצאה. הקירות נצבעו בבז' שמלווה את כל הבית, ובסלון הוא נקטע בחלק העליון ונצבע בלבן-אפרפר. הספה, גופי התאורה וכדי החרס לעציצים כוללים את גוון החמרה, וכך גם הקרמיקה בחדר הרחצה. נגיעות זהב יש במטבח, בוויטרינת הבובות בסלון ובפרזול של חדרי הרחצה. לשירותי האורחים נבחר ארון כיור בסגול חציל, שמתבלט על רקע לבן ונקי". לרצפה נבחרו אריחי טראצו בגודל 120X120 ס"מ, ויש בהם נגיעות עדינות של צבע באגרגטים בצבע ירוק וחמרה. "בחירת הריצוף מאפשרת לקבל את הצבעוניות של הבית בלי ליצור ניגודיות חדה מדי, וכך גם צבעי הקיר הרכים".

פרסומת
דירה בתל אביב תכנון ועיצוב פנים מיכאל ומור וולובץ
צילום: קרין רבנה

דירה בתל אביב תכנון ועיצוב פנים מיכאל ומור וולובץ
צילום: קרין רבנה

הדירה נפתחת מול פינת האוכל והמטבח, שתוכנן בהתאמה אישית לצורכי המשפחה ויוצר אצל נגר, כמו שאר פרטי הנגרות בבית. המטבח מורכב משני חלקים. הראשון נמוך בצבעי אפור חם עם משטח עבודה ומדף עליון פתוח לכל אורכו, והשני גבוה עם מקרר, בילט-אין ומזווה בצבעי בז' סהרה שמזכיר את הקיר. הדופן הצידית של האזור הגבוה פונה לכיוון הסלון ומציעה מידוף פתוח מעץ אגוז לאחסון ספרים ותצוגת אקססוריז. חלון קטן במטבח נשאר במקומו כדי להוסיף ירוק פנימה ונקודת מבט החוצה, ללא צורך בארונות עליונים.

דירה בתל אביב תכנון ועיצוב פנים מיכאל ומור וולובץ
צילום: קרין רבנה
פרסומת

דירה בתל אביב תכנון ועיצוב פנים מיכאל ומור וולובץ
הדמיה: קרין רבנה

שולחן פינת האוכל מעץ אגוז והכיסאות ממתכת עם ריפוד דק בשחור. מעל השולחן גוף תאורה שרכשה טלי בחנות וינטג', וכך גם הגוף הקירי שמעל משטח העבודה. ספת השזלונג בסלון בייצור אישי עם בד חמרה-כתמתם שנבחר בהתאם לפלטת הגוונים שאהבו בני הזוג, ומולה ניצבת שידת טלוויזיה ארוכה בירוק בקבוק לאחסון ספרים, מגזינים ותקליטים. חציה סגור וחציה פתוח, והיא יושבת על הרצפה, גם היא בייצור אישי אצל הנגר. גופי התאורה התקרתיים תוכננו ויוצרו אישית בגווני חמרה ובמשחק צורני גיאומטרי של כדורים וקונוסים. שולחן הקפה בעץ אגוז, וכך גם שידת הכיור בחדר הרחצה, כדי לשמור על קו אחיד בגוון העץ.

דירה בתל אביב תכנון ועיצוב פנים מיכאל ומור וולובץ
הדמיה: קרין רבנה

דירה בתל אביב תכנון ועיצוב פנים מיכאל ומור וולובץ
רחצה | צילום: קרין רבנה
פרסומת

השיפוץ ארך שלושה חודשים וחצי, והתכנון שקדם לו ארך שלושה חודשים. בסך הכל תוקצבו לו 700 אלף שקלים. "התוצאה מושלמת. הריהוט שאיתרתי ובחרתי לדירה השתלב מעולה. הנגרות יצאה בול למידותנו. אנחנו מרוצים מאוד וקוטפים את הפירות של הבית, כלומר יודעים שבחרנו את הכל נכון", אומרת טלי.

דירה בתל אביב תכנון ועיצוב פנים מיכאל ומור וולובץ
צילום: קרין רבנה

דירה בתל אביב תכנון ועיצוב פנים מיכאל ומור וולובץ
התוכנית לפני | צילום: קרין רבנה

תכנון ועיצוב פנים: מיכאל ומור וולובץ, סטודיו VOLOVATZ

גופי תאורה בסלון: IMD LIGHTING

מטבח ונגרות: נגריית ACME