חומות של תקווה: וילה רומנטית בסביון
בין המטבח לפינת האוכל נבנה קיר לבנים נמוך (כדי שלא יראו את הבלאגן במטבח). בחדר ההורים נבנה קיר שחוצץ בין המיטה לחדר הארונות (כדי שלא יראו את הבלאגן בארון) ורק בקירות הסלון נפערו חלונות ענק (כדי שיראו את הבריכה). כך תוכנן בית משפחתי ומאוד מזמין למשפחה בת שש נפשות




עוד באתר לעיצוב הבית:
להסתיר את הבלגן שבמטבח
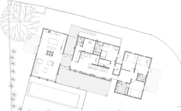
"הלקוחות ביקשו בית מותאם אישית, העונה לצרכים הספציפיים של המשפחה", מספרת האדריכלית שרון נוימן, שתכננה את הבית בשיתוף עם האדריכלית הילה צור. "תכננו את הבית בצורת שלושה אגפים סביב חצר ובריכה. בין האגפים מפרידים שני מחברי זכוכית, אחד מהם מהווה גם את מבואת הכניסה. מהות הבית היתה הקשר בין הפנים לחוץ, ולכן הוא בנוי סביב החצר. מכל חלל (למעט חדר העבודה) ניתן לצאת ישירות החוצה, לפעמים גם למספר כיוונים", מתארת נוימן.




החלל הציבורי גדול ופתוח, ומכיל סלון, מטבח ופינת אוכל. בין המטבח המרווח לפינת האוכל תוכנן קיר free standing, מחופה אבני בריקס, השומר על איזון בין פתוח לסגור בכל הקשור לבלאגן של המטבח, הנמצא בשימוש אינטנסיבי. ניתן לצאת לחצר המערבית הן מהמטבח והן מפינת האוכל.
פינת האוכל תוכננה כך שהשולחן יוכל לגדול על מנת לארח אורחים רבים. הסלון רחב הידיים צופה אל הבריכה ואל החצר דרך פתחים גדולים הממוסגרים על ידי עמודים מחופים בריקס.



חדר ההורים המרווח מוקם בקומה נפרדת. חדר ארונות פתוח הוצב מאחורי קיר free standing נוסף, המהווה גם משען למיטה מעברו השני. חדר הרחצה מינימלי ומזמין וכולל אמבט ומקלחון.


לבן עוצבה סוויטה משלו, הנמצאת באגף המרכזי, שם נמצאים גם חדר המשפחה, המשרד, שירותי האורחים וחדר הכביסה. אגף זה הוא היחיד בן שתי קומות, כאשר סוויטת ההורים ממוקמת בקומה הראשונה. הבנות, שתיים מהן תאומות, קיבלו חדרים עם גלריית שינה הממוקמים באגף נפרד משלהן.


סגנון רומנטי ורך
סגנון הבנייה הוא רומנטי ורך, ובהתאם נבחרו חומרים חמים: חיפויי לבנים באגף הבנות, על גבי קירות הבית, עמודים כאלמנטים דקורטיביים, פרקט ואבן בפטרן קלאסי לרצפה ונגרות בפרטים "של פעם".
מרפסות ההורים, הבנות והמטבח מחופות באריחי בטון תלת ממדיים, ואילו אריחי בטון מצוירים ("גלוסקא") מעטרים את רצפות וקירות החדרים הרטובים.


"תהליך התכנון היה מרתק ונינוח", מסכמת נוימן. "לאחר לימוד הפרוגרמה והמגרש הצגנו שתי סקיצות שונות מאד ושתיהן התקבלו בהתלהבות מצד הלקוחות. מבחינתנו, כאנשי מקצוע, נדרש איזון עדין בין הסגנון הרך והרומנטי אותו ביקשו הלקוחות לבטא בביתם, לבין עקרונות התכנון המודרני המנחים אותנו בעבודותינו. בסופו של התהליך ניתן לומר כי האיזון הושג ושני הצדדים יצאו מרוצים. הבית נאמן לתמה עליו שלנו – אסתטיקה פונקציונאלית. הדברים חייבים להיראות טוב, אבל חייבת להיות להם סיבה. אין פרטי קישוט מודבקים, ויש תחושה של משהו שעובד בחלל כששוהים בו, גם אם המבקרים אינם מקבלים הסבר מלומד על קונספט התכנון".








תכנון ועיצוב: אדריכלית שרון נוימן, בשיתוף אדריכלית הילה צור